フリーズライフが手掛けたナチュラルスタイルからベーシックスタイルまで
さまざまなお家をルームツアーでご紹介します。
動画をチェックしながらリノベーションのイメージを湧かせませんか?
築20年戸建てアクセントクロス


デザインポイント
❶ 天井の羽目板木の素材感を楽しめ、温かみにある雰囲気に
天井Panasonic / QPS030110EY(オーク)
❷ リビングにワークスペース備え付けのデスクと棚はリビングに
あわせてコーディネート
デスク・シェルフPanasonic
❸ 造作洗面台洗面台はタイルがアクセント
シンプルで掃除しやすく
メラミン化粧板アイカ工業 / TJY2051
水栓essence / E414010
ボウルessence / E274240
築42年団地アクセントクロス


デザインポイント
❶ 室内窓玄関には光や風を取り込む室内窓を設置
室内窓Panasonic
❷ キッチンにデザインタイルお洒落なデザインタイルを施した、
広々としたキッチン。
タイル名古屋モザイク/ イリーデ IR-S-315
❸ ワークスペース在宅ワークやお子様の学習スペースにも
嬉しい備え付けのワークスペース。
インテリアカウンターPanasonic / 耐水集成タイプ
クリア塗装(アッシュ)
築50年団地アクセントクロス


デザインポイント
❶ ワークスペースフレームシェルフ付のワークススペース
造作デスクチャネルオリジナル フリーボード
フレームシェルフPanasonic
❷ ウォークインクローゼット家族の衣類をまとめて収納できる大容量空間
収納棚(枕棚+パイプハンガー)南海プライウッド
❸ 広々キッチンW2400の広々キッチン
キッチンクリナップ / ラクエラ
クリア色
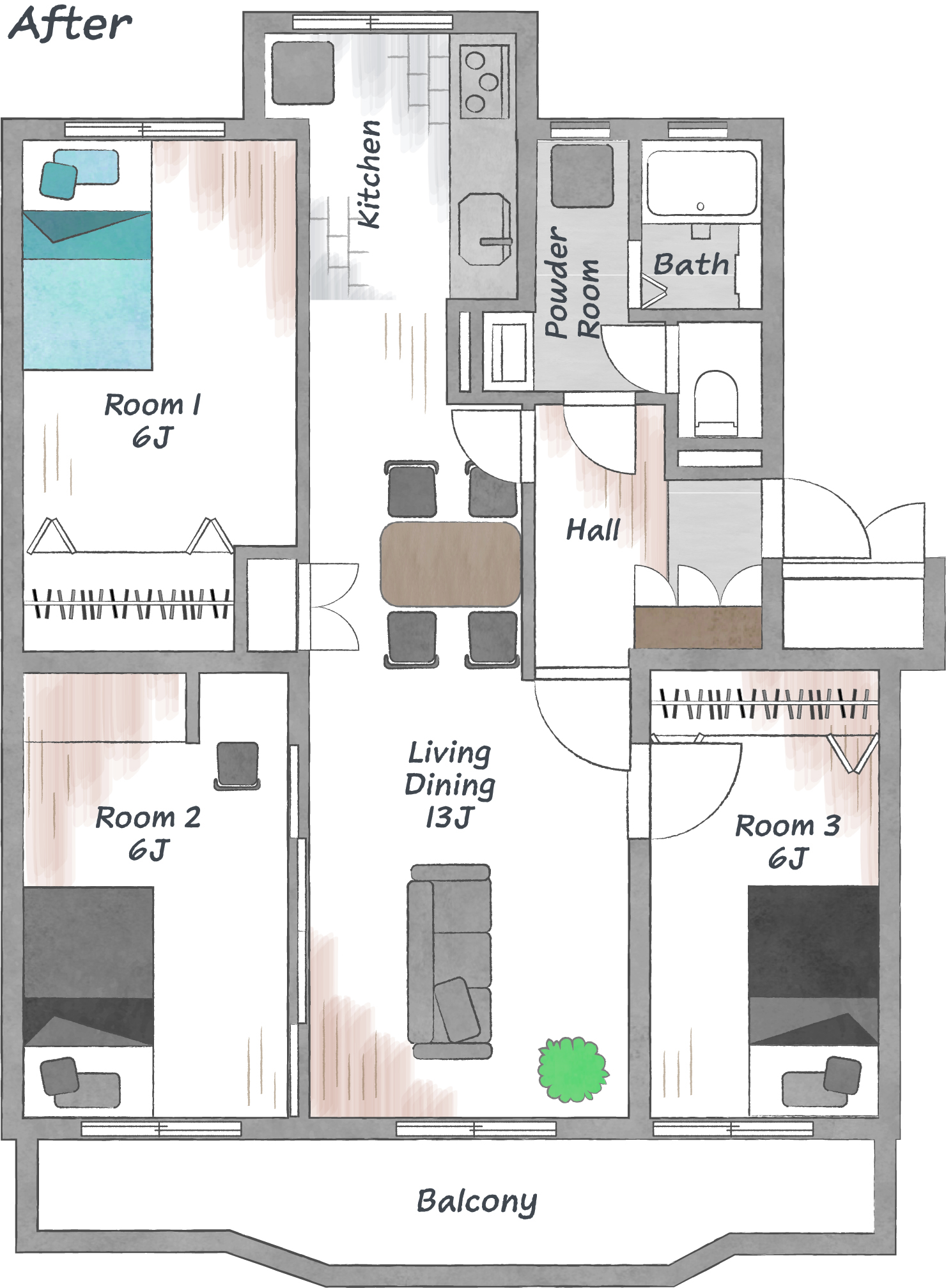
築20年戸建てアクセントクロス

デザインポイント
❶ 主役級なキッチンキッチンとダイニングテーブルは
同じブランドでコーディネート
キッチンGRAFTEKT / ベトングレー×ブラウン
ダイニングテーブルGRAFTEKT / ブラウン
❷ 土間収納玄関収納を拡張し、広々とした土間収納に
フレームシェルフPanasonic / アンティークブラウン色
❸ ワークスペース仕事の資料やお子様の時間割などを
貼れるスペースがついたデスク
マグネットボートPanasonic / ブラックオーク