【リノベ済マンション】南向き、2路線利用・ペット可│八千代市村上

千葉県八千代市村上
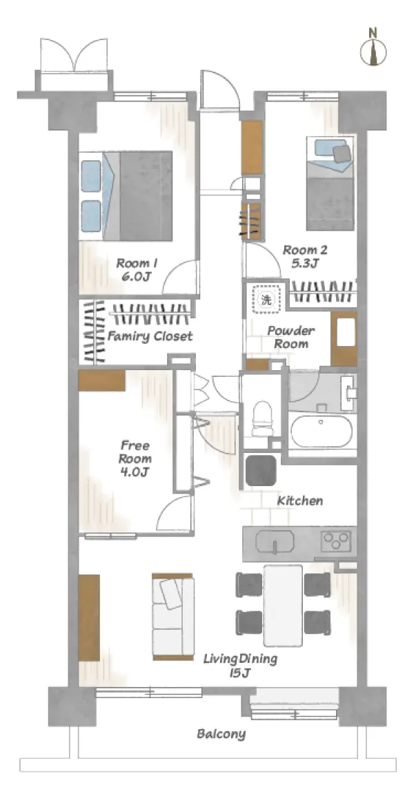
ラミーユ勝田台ハイライズイーストヒル226号室
【物件概要】
■管理形態:全部委託/株式会社日鉄コミュニティ
■開口:南向き
■総戸数:192戸
■用途地域:第2種住居地域・第1種低層住居専用地域
■駐車場:空有 月額/8,000円~10,000円
■バイク置き場:空有 月額/3,000円
■都市ガス ■給湯:ガス湯沸器
■エレベーター有 ■オートロック
■宅配BOX有
■ペット可(ただし、規約による制限有)

【※変動金利、35年払いの場合】